Product Information
PWSMEBF
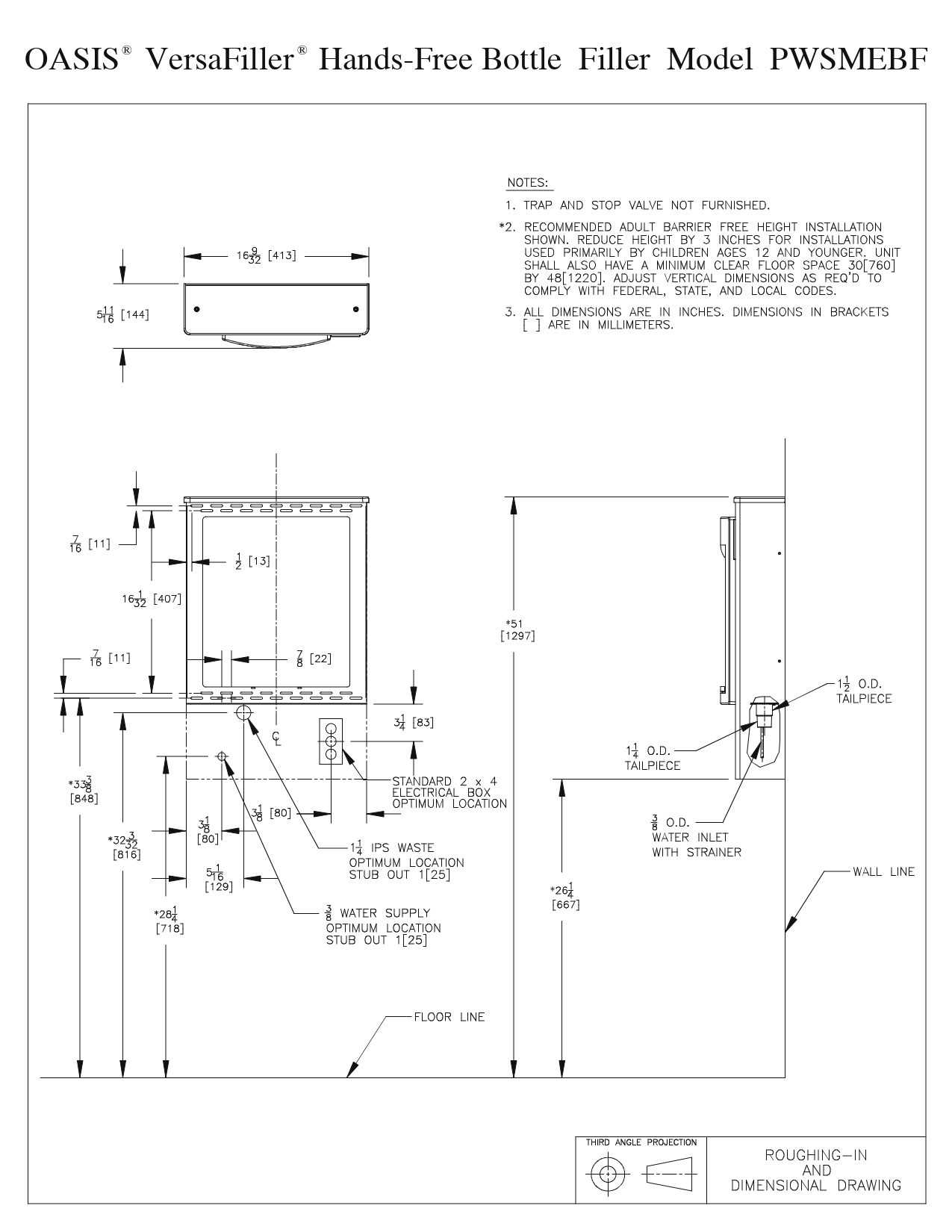
Oasis wall mounted hand free bottle filler
Dispensers
Download PDF
default
Please select...
Provide Installation Service
( Inventory: - )
:$-
$-
Specification
| Brand | Oasis |
|---|
Features

